Пневмораспределители 3Р-4(6;10;16)-232-3 с двухсторонним электропневматическим управлением
Пневмораспределители 3-х-линейные с условным проходом (Ду) 4;6;10;16 мм двухпозиционные с двухсторонним электропневматическим управлением предназначены для изменения направления потоков сжатого воздуха в пневмоприводах различного назначения.
Конструкция распределительного устройства: цилиндрический золотник.
Присоединение: резьбовые отверстия в корпусе распределителя.
Рабочая среда - сжатый воздух, очищенный не грубее 10 класса загрязненности по ГОСТ 17433 содержащий распыленное масло вязкостью от 10 до 35 мм2 /с (сСт) при температуре 50°С.
Климатическое исполнение УХЛ и О, категория размещения 4 по ГОСТ 15150.
В качестве управляющего распределителя используются два трехлинейный пневмораспределителя с электромагнитным управлением (клапан пилот), который присоединяется к сети через электроконтактный разъем. Клапан-пилот имеет устройство для ручного дублирования электрического сигнала.
Степень защиты, обеспечиваемая оболочкой катушки пилота - IP65 по ГОСТ 14254.
Цилиндрический золотник размещен в корпусе, который имеет каналы с резьбовыми отверстиями для подсоединения внешних пневмолиний. При подаче электрического сигнала срабатывает клапан-пилот. Золотник основного пневмораспределителя перемещается в крайнее положение. Для пневмораспределителя с двухсторонним управлением положение золотника определяет последняя команда от клапана-пилота и запоминается (после ее снятия) только при горизонтальном положении золотника. В исходном положении канал питания (1) отсечен золотником, а выходной канал (2) сообщен с атмосферным каналом (3). При электрической команде на клапан-пилот (12) канал питания (1) сообщается с выходным каналом (2), а канал (3) отсекается золотником При монтаже распределители крепятся двумя винтами через отверстия в корпусе.

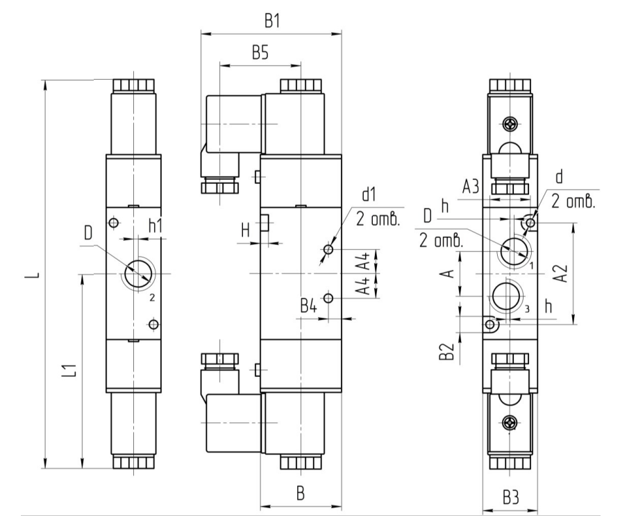
Габаритные и присоединительные размеры пневмораспределителя 3Р-4(6;10;16)-232-3 
Размеры 3Р-4(6;10;16)-232-3

Технические характеристики пневмораспределителя 3Р-4(6;10;16)-232-3





























